Til leje her og nu!
Runevænget 114 i Guderup, 6430 Nordborg
Dette er en Her-og-nu bolig
Vores Her-og-nu boliger har ingen venteliste - du kan søge dem med det samme, og det betyder ikke noget, om du først lige er blevet medlem af B42. Her-og-nu boligerne bliver tildelt efter princippet om først-til-mølle: Den, der kontakter os først, bliver den nye lejer, uanset anciennitet.
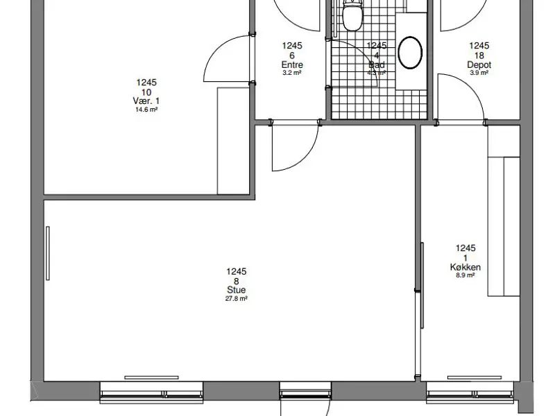
Velindrettet rækkehus med 3 rum og have i Guderup
Det rummelige rækkehus på Runevænget i Guderup er indrettet med entré, et stort soveværelse med indbyggede skabe, et mindre værelse samt en stor, lys stue i forbindelse med køkkenet. Fra stue/køkken er der udgang til haven. Derudover rummer rækkehuset et stort badeværelse samt et bryggers.
Hvis du ønsker at søge denne bolig, kan du kontakte vores Udlejning på tlf.: 74 42 57 95 (tast 1).
| Areal (brutto) | 85 m2 |
| Værelser | 3 |
| Have | Ja |
| Husleje* | 6.946,36 kr. |
| Beboerindskud | 17.000,00 kr. |
| Ledig fra | 14-11-2025 |
| Husdyr | Husdyr er tilladt, dog max en kat eller hund. |
*Huslejen er uden forbrugsafgifter (varme, el og vand)
Vær opmærksom på, at du - hvis du ønsker denne bolig - vil blive opkrævet en straksbetaling.
Straksbetalingen består af: Beboerindskud + første måneds husleje og acontobeløb til forbrug.
Boligen ligger i afdeling 42.
Plantegning og billeder fra en bolig af samme type på Runevænget