Studiebolig til leje her og nu!
Studiebolig med central beliggenhed i Broager
Dette er en studiebolig - til leje Her-og-nu
Vores Her-og-nu studieboliger har ingen venteliste - du kan søge dem med det samme, og boligerne bliver tildelt efter princippet om først-til-mølle
VIGTIGT - du kan kun søge vores studieboliger, hvis du er studerende!
1-værelses studiebolig
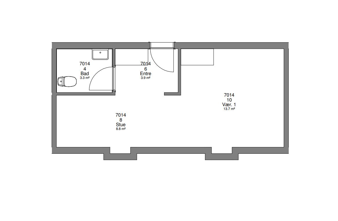
Studieboligen på Møllegade i Broager er på 49 m2 og indrettet med entré, stue/værelse, køkken og badeværelse. Studieboligen ligger i hjertet af Broager - tæt på indkøbsmuligheder og offentlig transport.
Se en video fra en lignende studiebolig ved at klikke her
For at kunne søge studieboligen skal du kunne dokumentere, at du er studerende.
Hvis du ønsker at søge studieboligen, kan du kontakte vores Udlejning på tlf.: 74 42 57 95 (tast 1).
| Areal (brutto) | 49 m2 |
| Værelser | 1 |
| Husleje* | 2.769,26 kr. OBS: Huslejen stiger pr. 01-07-2026 til 2.873,96 kr./md + forbrug |
| Beboerindskud | 9.800,00 kr. |
| Ledig fra | 01-05-2026 |
| Husdyr | Husdyr er desværre ikke tilladt i studieboligerne |
*Huslejen er uden forbrugsafgifter (varme, el og vand)
Vær opmærksom på, at du - hvis du ønsker denne bolig - vil blive opkrævet en straksbetaling.
Straksbetalingen består af: Beboerindskud + første måneds husleje og acontobeløb til forbrug.
Boligen ligger i afdeling 77.
Plantegning og billeder fra studieboligerne på Møllegade
Har kan du se billeder fra Møllegade, plantegning af studieboligen samt billeder af en lignende studiebolig - dog med lidt anden indretning.