Studiebolig til leje her og nu!
Studiebolig på St. Rådhusgade i Sønderborg
Dette er en studiebolig - til leje Her-og-nu
Vores Her-og-nu studieboliger har ingen venteliste - du kan søge dem med det samme, og boligerne bliver tildelt efter princippet om først-til-mølle
VIGTIGT - du kan kun søge vores studieboliger, hvis du er studerende!
Delebolig for studerende med 3 værelser - midt i Sønderborg
Er du studerende, og drømmer du om at bo midt i Sønderborg sammen med op til to studiekammerater - så er deleboligen på St. Rådhusgade måske noget for dig!
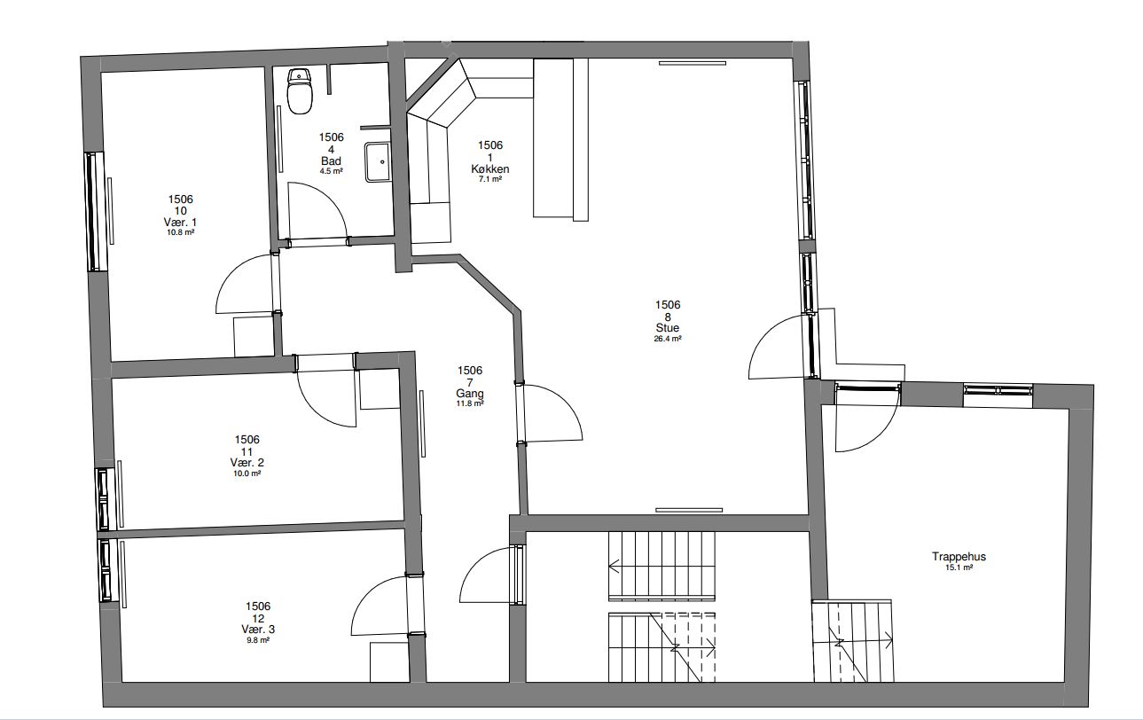
Lejligheden er indrettet med 3 individuelle værelser samt fælles badeværelse og stort køkken/alrum. Med placeringen i hjertet af Sønderborg er I tæt på alt: Butikker, caféer, restauranter og havnefronten - og fra den lille terrasse foran lejligheden får I udsigt over byens tage.
Lejligheden bliver udlejet til én primær lejer, der selv skal bo i det ene værelse. Denne primære lejer kan herefter fremleje de to øvrige værelser efter aftale med B42.
For at kunne søge studieboligen skal du kunne dokumentere, at du er studerende.Hvis du ønsker at søge studieboligen, kan du kontakte vores Udlejning på tlf.: 74 42 57 95 (tast 1).
| Areal (brutto) | 123 m2 |
| Værelser | 3 + fælles køkken/alrum |
| Husleje* | 8.505,31kr. |
| Beboerindskud | 24.600,00 kr. |
| Ledig fra | 01-04-2026 |
| Husdyr | Husdyr er desværre ikke tilladt i studieboligerne |
*Huslejen er uden forbrugsafgifter (varme, el og vand)
Vær opmærksom på, at du - hvis du ønsker denne bolig - vil blive opkrævet en straksbetaling.
Straksbetalingen består af: Beboerindskud + første måneds husleje og acontobeløb til forbrug.
Boligen ligger i afdeling 30.
Plantegning for lejligheden og billeder fra St. Rådhusgade
Har kan du se plantegning samt billeder fra lejligheden på St. Rådhusgade: